× 会员管理
【第五届REARD城市更新奖获奖作品赏析】北京华商壹棠服务公寓 | 北京云翔建筑设计有限公司

0头部.jpg【第五届REARD城市更新奖获奖作品赏析】北京华商壹棠服务公寓-_-北京云翔建筑设计有限公司-1_01.jpg【第五届REARD城市更新奖获奖作品赏析】北京华商壹棠服务公寓-_-北京云翔建筑设计有限公司-1_02.jpg【第五届REARD城市更新奖获奖作品赏析】北京华商壹棠服务公寓-_-北京云翔建筑设计有限公司-1_03.jpg【第五届REARD城市更新奖获奖作品赏析】北京华商壹棠服务公寓-_-北京云翔建筑设计有限公司-1_04.jpg【第五届REARD城市更新奖获奖作品赏析】北京华商壹棠服务公寓-_-北京云翔建筑设计有限公司-1_05.jpg【第五届REARD城市更新奖获奖作品赏析】北京华商壹棠服务公寓-_-北京云翔建筑设计有限公司-1_06.jpg【第五届REARD城市更新奖获奖作品赏析】北京华商壹棠服务公寓-_-北京云翔建筑设计有限公司-2_01.jpg【第五届REARD城市更新奖获奖作品赏析】北京华商壹棠服务公寓-_-北京云翔建筑设计有限公司-2_02.jpg【第五届REARD城市更新奖获奖作品赏析】北京华商壹棠服务公寓-_-北京云翔建筑设计有限公司-2_03.jpg【第五届REARD城市更新奖获奖作品赏析】北京华商壹棠服务公寓-_-北京云翔建筑设计有限公司-2_04.jpg【第五届REARD城市更新奖获奖作品赏析】北京华商壹棠服务公寓-_-北京云翔建筑设计有限公司-2_05.jpg【第五届REARD城市更新奖获奖作品赏析】北京华商壹棠服务公寓-_-北京云翔建筑设计有限公司-2_06.jpg【第五届REARD城市更新奖获奖作品赏析】北京华商壹棠服务公寓-_-北京云翔建筑设计有限公司-3_01.jpg【第五届REARD城市更新奖获奖作品赏析】北京华商壹棠服务公寓-_-北京云翔建筑设计有限公司-3_02.jpg【第五届REARD城市更新奖获奖作品赏析】北京华商壹棠服务公寓-_-北京云翔建筑设计有限公司-3_03.jpg【第五届REARD城市更新奖获奖作品赏析】北京华商壹棠服务公寓-_-北京云翔建筑设计有限公司-3_04.jpg

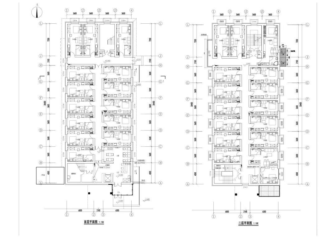
1.jpg

▲1#2#一层平面图

2.jpg

▲1#2#二层平面图

3.jpg

▲1#2#三层平面图

4.jpg

▲1#2#四至十三层平面图

5.jpg

▲1#2#十四至十七层平面图

6.jpg

▲1#2#十八层平面图

【第五届REARD城市更新奖获奖作品赏析】北京华商壹棠服务公寓-_-北京云翔建筑设计有限公司-3_06.jpg

7.jpg

▲3#一、二层平面图

8.jpg

▲3#三、四层平面图

9.jpg

▲3#五、六层平面图

【第五届REARD城市更新奖获奖作品赏析】北京华商壹棠服务公寓-_-北京云翔建筑设计有限公司-3_08.jpg

微信小程序
微信关注
版权所有 ©上海锐棣文化传媒有限公司|renewal-zone.com 沪ICP备2022003455号-3